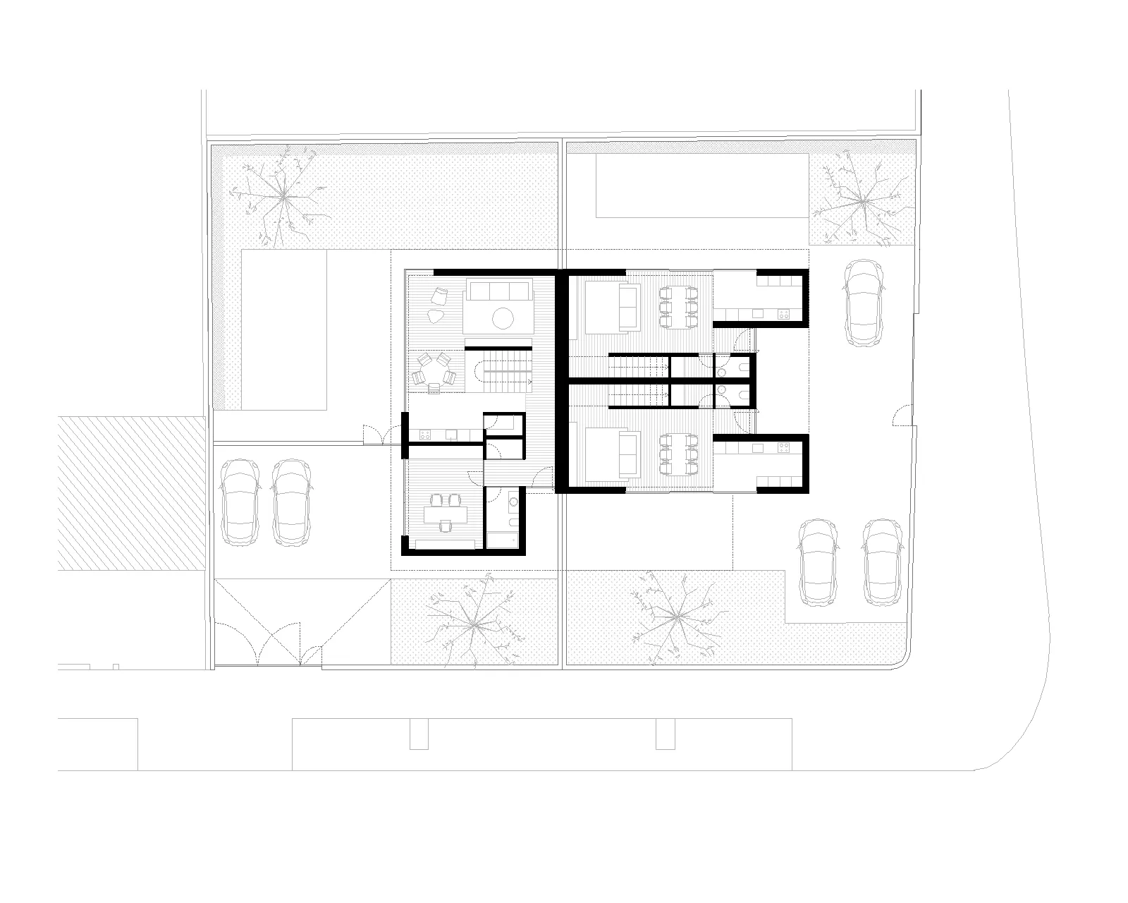
Casas em Prazins

LOCALIZAÇÃO

Prazins Santa Eufémia

ANO

2025

TIPOLOGIA

Construção de habitações unifamiliar e bifamiliar

ÁREA

445 m2

Casas em Prazins
Casas em Prazins
Casas em Prazins
Casas em Prazins
Casas em Prazins
Casas em Prazins